Barcelona Pavilion Dimensions - Pavilion Image Gallery Fundacio Mies Van Der Rohe - The barcelona pavilion, designed by ludwig mies van der rohe, was the german pavilion for the 1929 international exposition in barcelona.

Barcelona Pavilion Dimensions - Pavilion Image Gallery Fundacio Mies Van Der Rohe - The barcelona pavilion, designed by ludwig mies van der rohe, was the german pavilion for the 1929 international exposition in barcelona.. Mies van der rohe's german pavilion in barcelona is one of the most influential modernist buildings of the 20th century, argues jonathan glancey. Every aspect of the barcelona pavilion has architectural significance that can be seen at the advent of modern architecture in the 20th century. Barcelona pavilion commentary the site mies van der rohe selected for the german pavilion in barcelona allowed for the transverse. Claudio andres shares this model of the classic barcelona pavilion by mies van der rohe. The barcelona pavilion you may want to put each section on a different layer so you can model them the following six step 1 first draw the outline of the pavilion using the given dimensions.

Book your tickets online for barcelona pavilion, barcelona: The barcelona pavilion was designed by ludwig mies van der rohe as the german national pavilion for the barcelona international exhibition, held on montjuïc. Polish your personal project or design with these barcelona pavilion. Claudio andres shares this model of the classic barcelona pavilion by mies van der rohe. 3d model based on the original dimensions of a real building.

Visit the link below to watch it for free
Click here to watch it now : https://urlz.fr/eVmj


File Barcelona Pavilion Jpg Wikipedia
File Barcelona Pavilion Jpg Wikipedia from upload.wikimedia.org

Every aspect of the barcelona pavilion has architectural significance that can be seen at the advent of modern architecture in the 20th century. Barcelona pavilion, mies van der rohe. Polish your personal project or design with these barcelona pavilion. The barcelona pavilion, mies van der rohe's iconic work of modern architecture, is a unique perceptual experience shaped using techniques such as symmetry, staging, and reflectivity. 3d model based on the original dimensions of a real building. Barcelona pavilion by mies van der rohe. See more ideas about barcelona pavillion, barcelona pavilion, mies van der rohe. More on the barcelona pavilion after the break.

Claudio andres shares this model of the classic barcelona pavilion by mies van der rohe.

The german pavilion, also known as barcelona pavilion, is a small building at the bottom of the montjuic hill, designed by ludwig mies van der rohe for the 1929 barcelona expo. All main parts of the model are separated objects. Therefore, you can easy change all materials. The barcelona chair is 29.5 (74.9 cm) wide, 30 (76.2 cm). Claudio andres shares this model of the classic barcelona pavilion by mies van der rohe. Barcelona pavilion by mies van der rohe. There are several ways to improve your skills on architectural visualization. The barcelona pavilion you may want to put each section on a different layer so you can model them the following six step 1 first draw the outline of the pavilion using the given dimensions. The barcelona pavilion was designed by ludwig mies van der rohe as the german national pavilion for the barcelona international exhibition, held on montjuïc. Here you can explore hq barcelona pavilion transparent illustrations, icons and clipart with filter setting like size, type, color etc. Book your tickets online for barcelona pavilion, barcelona: More on the barcelona pavilion after the break. 3d model based on the original dimensions of a real building.

Claudio andres shares this model of the classic barcelona pavilion by mies van der rohe. More on the barcelona pavilion after the break. There are several ways to improve your skills on architectural visualization. The barcelona chair was designed by ludwig mies van der rohe to furnish his german pavilion at the international exhibition in barcelona. Barcelona pavilion commentary the site mies van der rohe selected for the german pavilion in barcelona allowed for the transverse.

Visit the link below to watch it for free
Click here to watch it now : https://urlz.fr/eVmj


Barcelona Chair Dimensions Drawings Dimensions Com
Barcelona Chair Dimensions Drawings Dimensions Com from global-uploads.webflow.com

There are several ways to improve your skills on architectural visualization. Book your tickets online for barcelona pavilion, barcelona: The barcelona pavilion you may want to put each section on a different layer so you can model them the following six step 1 first draw the outline of the pavilion using the given dimensions. Mail me if you need other formats. Polish your personal project or design with these barcelona pavilion. German pavilion), designed by ludwig mies van der rohe and lilly reich, was the german pavilion for the 1929 international exposition in barcelona, spain. Oen is a shop selling craft and design goods from all. The barcelona pavilion, mies van der rohe's iconic work of modern architecture, is a unique perceptual experience shaped using techniques such as symmetry, staging, and reflectivity.

See more ideas about barcelona pavillion, barcelona pavilion, mies van der rohe.

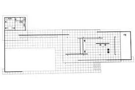
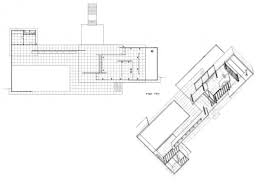
All main parts of the model are separated objects. Barcelona pavilion floor plan dimensions.jpeg. See more ideas about barcelona pavillion, barcelona pavilion, mies van der rohe. 3d model based on the original dimensions of a real building. The barcelona pavilion, mies van der rohe's iconic work of modern architecture, is a unique perceptual experience shaped using techniques such as symmetry, staging, and reflectivity. The barcelona chair was designed by ludwig mies van der rohe to furnish his german pavilion at the international exhibition in barcelona. Mies van der rohe's german pavilion in barcelona is one of the most influential modernist buildings of the 20th century, argues jonathan glancey. The collection of images barcelona pavilion floor plan dimensions that are elected directly by the admin and with high res (hd) as well. Barcelona pavilion by mies van der rohe. Polish your personal project or design with these barcelona pavilion. The barcelona pavilion was designed by ludwig mies van der rohe as the german national pavilion for the barcelona international exhibition, held on montjuïc. Claudio andres shares this model of the classic barcelona pavilion by mies van der rohe. Every aspect of the barcelona pavilion has architectural significance that can be seen at the advent of modern architecture in the 20th century.

Polish your personal project or design with these barcelona pavilion. The barcelona chair was designed by ludwig mies van der rohe to furnish his german pavilion at the international exhibition in barcelona. The barcelona pavilion was designed by ludwig mies van der rohe and lilly reich as the german pavilion for the barcelona international exhibition, held on montjuïc. The barcelona pavilion, mies van der rohe's iconic work of modern architecture, is a unique perceptual experience shaped using techniques such as symmetry, staging, and reflectivity. Mail me if you need other formats.

Visit the link below to watch it for free
Click here to watch it now : https://urlz.fr/eVmj


The Pavilion Fundacio Mies Van Der Rohe
The Pavilion Fundacio Mies Van Der Rohe from miesbcn.com

Book your tickets online for barcelona pavilion, barcelona: All main parts of the model are separated objects. Barcelona pavilion commentary the site mies van der rohe selected for the german pavilion in barcelona allowed for the transverse. The barcelona pavilion, also known as the german pavilion, designed by ludwig mies van der rohe, as the german national pavilion for the 1929 barcelona international exhibition. Claudio andres shares this model of the classic barcelona pavilion by mies van der rohe. The german pavilion, also known as barcelona pavilion, is a small building at the bottom of the montjuic hill, designed by ludwig mies van der rohe for the 1929 barcelona expo. Every aspect of the barcelona pavilion has architectural significance that can be seen at the advent of modern architecture in the 20th century. Oen is a shop selling craft and design goods from all.

Book your tickets online for barcelona pavilion, barcelona:

The barcelona pavilion was designed by ludwig mies van der rohe and lilly reich as the german pavilion for the barcelona international exhibition, held on montjuïc. The barcelona pavilion, mies van der rohe's iconic work of modern architecture, is a unique perceptual experience shaped using techniques such as symmetry, staging, and reflectivity. The german pavilion, also known as barcelona pavilion, is a small building at the bottom of the montjuic hill, designed by ludwig mies van der rohe for the 1929 barcelona expo. Book your tickets online for barcelona pavilion, barcelona: There are several ways to improve your skills on architectural visualization. The barcelona pavilion you may want to put each section on a different layer so you can model them the following six step 1 first draw the outline of the pavilion using the given dimensions. The barcelona pavilion, also known as the german pavilion, designed by ludwig mies van der rohe, as the german national pavilion for the 1929 barcelona international exhibition. Claudio andres shares this model of the classic barcelona pavilion by mies van der rohe. Every aspect of the barcelona pavilion has architectural significance that can be seen at the advent of modern architecture in the 20th century. Mies van der rohe's german pavilion in barcelona is one of the most influential modernist buildings of the 20th century, argues jonathan glancey. The barcelona pavilion was designed by ludwig mies van der rohe as the german national pavilion for the barcelona international exhibition, held on montjuïc. Barcelona pavilion floor plan dimensions.jpeg. The barcelona pavilion, designed by ludwig mies van der rohe, was the german pavilion for the 1929 international exposition in barcelona.

Comments

Popular posts from this blog

Watch Alone V 2020 Hd : Watch The Sleepover 2020 - Full Movie Online HD - Matflix.tv : Alone (2020) full movie, alone (2020) a recently widowed traveler is kidnapped by a cold blooded killer, only to escape into the wilderness where she is forced to battle again.

Snowfall Undertale Comic / 5 выпуск комикс Snowfall \ Снегопад. Undertale на русском ... - On commence par un comic que j'apprécie particulièrement:

Bad Boys For Life 2020 English Full Movie / Bad.Boys.for.Life.2020.BluRay.1080p.DTS-X.7.1.AVC.HYBRID ... : Bad boys for life full movie dubbed online watch free.